Developers
Du val – do they build good investment properties? an honest review
Thinking about buying a Du Val property? Here is an honest review of who this developer is and if one of Du Val’s properties could be the right fit for you.
Developers
13 min read
Author: Laine Moger
Journalist and Property Educator, holds a Bachelor of Communication (Honours) from Massey University.
Reviewed by: Ed McKnight
Resident Economist, with a GradDipEcon and over five years at Opes Partners, is a trusted contributor to NZ Property Investor, Informed Investor, Stuff, Business Desk, and OneRoof.
Even if you’ve never been property shopping, you’ve most likely heard of Mike Greer Homes.
This is because it is one of the biggest names in the New Build space, alongside the likes of Williams Corporation, Fletcher Living and Wolfbrook.
But ... are Mike Greer Homes good investment properties?
Because we work with 97 developers and thousands of investors each year, this is a question we – here at Opes Partners – get asked all the time.
So to cut to the chase, here is what we think of Mike Greer Homes:
So, in this article you’ll learn why we believe the above points. You’ll also learn about the man behind Mike Greer Homes, the pros and cons of purchasing a Mike Greer property, and whether this type of property is right for your property portfolio.
Do you have a question or comment about the Mike Greer Homes? Feel free to leave your thoughts in the comment section at the end of the page.
Just before we get into it, you should know that here at Opes we recommend New Build investment properties to investors. Although we’ve previously recommended some Mike Greer Homes properties to investors, at the time of writing we aren’t. This may change in the future, as you’ll learn in this review.
But even though there is an incentive for us to be biased, we’re still going to be fair, honest, and fact-based. That means you can decide whether they’re the right fit for you. The answer may be ‘yes’, but it could also be ‘no’.
Mike Greer Homes is different from other developers because it offers turnkey and design-and-build options as part of its core business, whereas other developers usually pick a side, and do just that.
Mike Greer Homes was founded in Christchurch in 1993 (one year shy of 30 years) and has since grown into a national business with 15 offices working throughout 9 regions.
It is one of the country’s busiest home builders.
BCI has Mike Greer Homes ranked in 4th place – 2 spots ahead of Signature Homes and behind the likes of G J Gardiner Homes, Williams Corporation and Fletcher Residential.
Having said that, Mike Greer Homes does not just build residential properties as it covers all aspects in the industry.
For example, on top of the standard turnkey, house and land, and design build options, it also does large-scale subdivisions (ie Spring Grove) and they also have retirement community options (over 55s).
Mike Greer Homes also has other business arms such as: Mike Greer Commercial and Mike Greer Architectural.
The man behind the company is Mike Greer, who founded the company and remains heavily involved today.
Current CEO Richard McEwan has been on board since 2011. According to him, Mike Greer Homes completes more than 1,000 residential builds a year through a range of residential housing developments.
Mike Greer Homes are also registered Master Builders and won 3 prizes in the 2022 Master
Builders House of the Year awards.
Mike Greer Homes has several turnkey projects underway or planned across the country.
The bulk of these projects are in Canterbury, but there are also several options in Auckland, Wellington, Nelson, Tauranga and some smaller regions too.
Generally speaking, Mike Greer build a range of properties, from 1, 2 and 3-bedroom townhouses, through to standalone properties. They also have ‘over 55’ options (more on this below).
Alongside smaller-scale projects, Mike Greer is well known for buying large plots of land and subdividing. One example is Spring Grove in Christchurch.
According to Opes Property sales consultant Mickey Limmer, despite being large-scale developers Mike Greer doesn’t build “cookie-cutter” homes.
Or said another way, properties do keep a certain amount of individuality despite the large scale of build with a variety of home designs, layouts and outlooks available for buyers and investors.
Secure a comfortable retirement with 3 easy steps
Book your free sessionHouses for sale offer:

Here are some of the common options you can buy from Mike Greer:
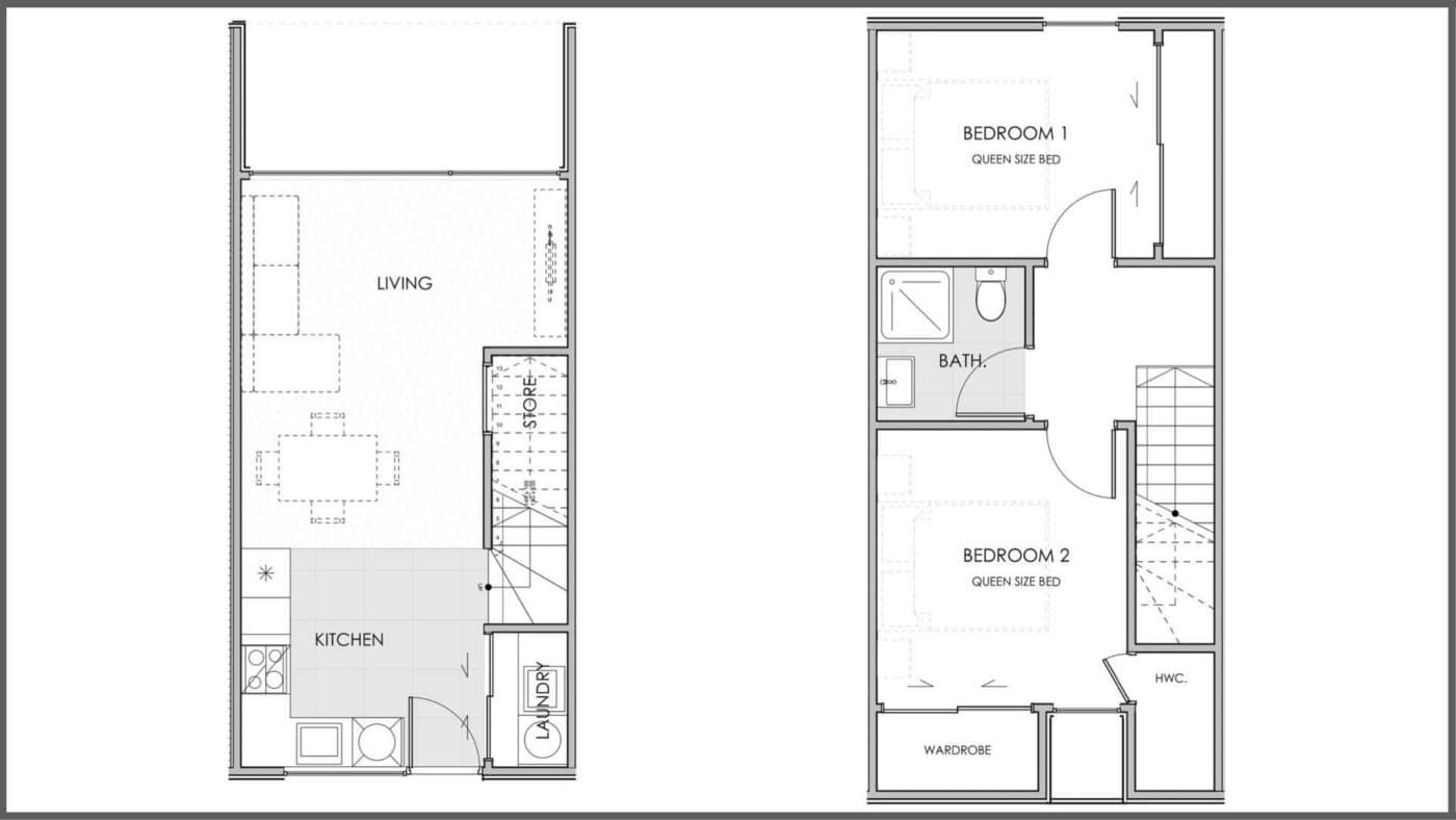
Here is an example of a Mike Greer Homes property, 1 of 7 terraced houses built in Hinemoa Street in Spreydon, Christchurch.

The 2-bed,1 bathroom townhouse (a bedroom and an office) is spread over 64m2 and has one garage.
The price of this townhouse is $595k.
On the ground floor there is an open-plan kitchen, living and dining area, and a courtyard. The two bedrooms are upstairs and share a bathroom.

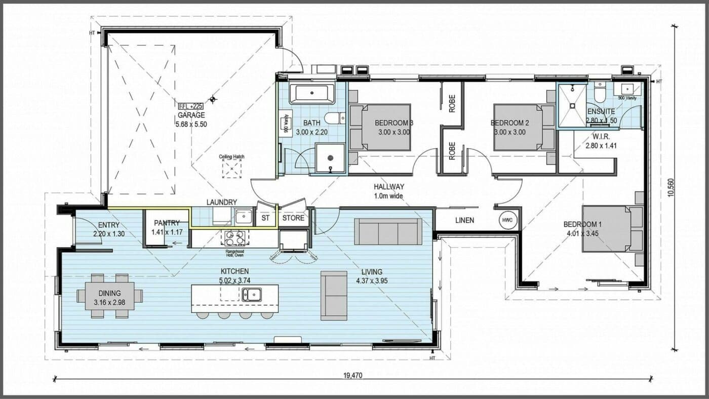
Here is an example of a 3-bed, 2-bathroom standalone home in Lenborough Drive, Rolleston.

The floor plan of 159m2 has an internal access garage, an open plan living and dining area, and an en suite in the master bedroom.
The section size is 472m2.

For those looking to build a property (rather than buy one from Mike Greer), there are several types you can build.
Most share a familiar floor plan – what you expect in a standalone property. This is either 1 or 2 storey, often coming with an internal-access garage and open plan living/dining and kitchen area.
In total, Mike Greer Homes offers 49 plan types across three different collections, which are categorised by floor size:
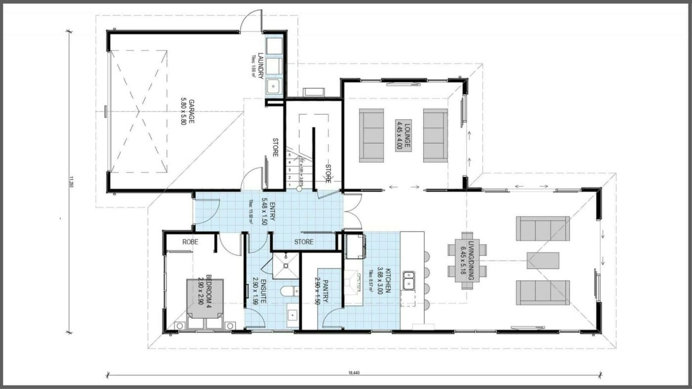
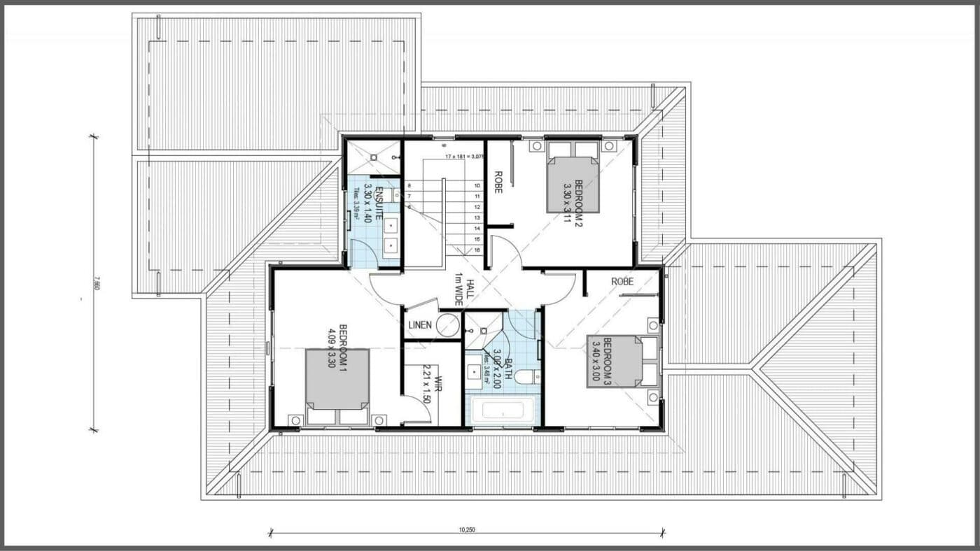
Here is an example of the Leigh plan (of the Family Collection), which has 4 bedrooms, 3 bathrooms, 2 lounges and a double car garage spread over 250m2.


Mike Greer Homes is also known for buying large plots of land and subdividing into high-density communities.
Let’s take a look at one of these subdivisions in more detail.
Spring Grove is a large subdivision 10 mins north of Christchurch (11km away) in Belfast, Christchurch and has a mix of turnkey, home and land, and “over 55s” choices.
The “over 55” option is a turnkey package that offers a choice of either 2 or 3 bedrooms, an open living kitchen and dining area and has an internal garage.
However, only a person who is 55 or older is allowed to live in the property. This is a specific type of property, where the rules are set by the local council to look after older residents.
Prices start at $590k for a 2-bed, 90m2 property and go up to $695K for a 3-bed, 156m2 property.

A turnkey option is defined as an all-inclusive package that only requires 10% deposit, which goes for townhouse and standalone properties.
Turnkey options on this subdivision start at $760k, and some have a smidge more land than a house and land option.
For example, Lot 244 East of Blakes Road is a 3-bed, 2-bath property spread over 125m2 on 407m2 of land.
Conversely, house and land packages are standalone properties with a property set on a larger-than-townhouse section.


Here is the scale of what you can expect to pay for a Mike Greer Homes property.
How much does a mike greer property cost in Christchurch?
To begin, a 53m2 1-bedroom property (with a car park) in Papanui starts at around $589,000.
Moving up to a 2-bed townhouse in Spreydon, you’re looking at spending $595,000.
Both these properties are eligible for a first home grant.
The most expensive townhouse on the stock list is a 96m2 3-storey, 2-bedroom in Christchurch central, priced at $879k.
In terms of turnkey, townhouse properties tend to stop around the $900k mark, which is where the standalone home and land package options start to take over.
At the higher end, at the time of writing the company was advertising 3-bed/3-bath townhouses in Addington, Christchurch for $920,000 a piece.
The least expensive home and land package is a Spring Grove 3-bed property for $819k.
This goes all the way up to a $1.739m 4-bedroom standalone property in Styx Mill Park, which is a new premium development in Christchurch.
As you would expect, Auckland properties are a bit more expensive but they do vary between suburbs.
For example, a 57m2 1-bedroom property (with a car park) in Owairaka (central Auckland) starts at around $619,000.

At the more expensive end, a 3-bed, 2-bath townhouse in Glen Innes is currently being advertised for $1.35m.
There are 2 house and land package options available in Auckland. Both are based in Silverdale, and are priced at $1.425m and $1.575m, respectively.
There were 4 properties being advertised in Wellington, at the time of writing.
All are a part of the Richmond Street development in Petone.
The prices start at $1.525m (for a 177m2 home on around 190m2 land) and $1.595m (for a 185m2 home on around 189-200m2 land).

Because we’ve recommended selected Mike Greer Homes properties to our investors in the past, here at Opes, naturally we do think some of their properties are good investments.
However, we haven’t recommended their properties to investors for a few years.
Why? Well, not all good properties will make good investments.
And although we have no concerns about Mike Greer’s ability to build a house – we have questioned whether those houses make good investments.
More recently, Mike Greer properties have been too expensive to meet the 4% gross yield baseline that we look for in investment properties.
At a certain price a property is no longer a good investment. For example, the 3-bed, 2-bath townhouse in Glen Innes priced at $1.35m, would be too expensive to meet the mark of a good investment property.
Compare that to a property in Auckland that is currently recommended. There is a set of 3-bedroom townhouses for $840k in Mangere, and $859k in Glen Eden. Bear in mind these properties are located in more affordable suburbs.
Again, in terms of standalone properties other developers like Oakridge Homes and Freedom Built have built properties with a lower price tag compared with Mike Greer.
That said, Opes has been discussing some potential investment properties in the New Year. If the price and the rent work (as an investment), we’ll likely recommend them to investors.
Before Opes recommends properties to our investors, each developer goes through a detailed due diligence process.
This process found Mike Greer to be a well-established company, with a strong track record, which is why we have previously recommended some of their properties in the past.
One of things investors need to think through before they purchase through a developer is whether the property will actually get built.
In Mike Greer Homes’ case:
This can give investors confidence that the company has the scale to negotiate the supply of building materials and labour to complete projects.
Also, Mike Greer Homes partners with many reputable brands, such as ITM, Fujitsu and Smeg, which adds to the credibility of its build quality and finish.
Some Mike Greer Homes properties could be the right fit for property investors. Especially those who want to invest in Christchurch, or Auckland. But, the price has to be right for the amount of rent the property will achieve.
Because Mike Greer tends to build townhouses and standalone houses, these properties are a better fit for investors looking to grow their wealth … as opposed to investors who want to live off the rental income.
However, not every single Mike Greer property is a good investment.
For instance, the Glen Innes 3-bed townhouse for $1.35m, mentioned earlier in this article. This may well be of a high standard, and a good option for an owner-occupier, but not for an investment.
As a rule of thumb, Opes tends to recommend properties in and south Auckland, because properties here are:
Similarly, the high price point likely means that some Mike Greer properties won’t be the right fit for a first home buyer. But, they could be a good fit for an owner-occupier looking for their 2nd or 3rd home.
All things considered, Mike Greer Homes can be a great option for a property investor looking to grow their portfolio.
As a well established, and high-producing developer, investors may find some comfort in knowing they are buying a “Mike Greer” home.
Anecdotally, a real estate agent we spoke to said: “Having on-sold a lot of Mike Greer Homes properties some 8 to 10 years on… they are always well built properties.
“Mike Greer Homes are built exceptionally well, which means when it comes time to on-sell properties the building inspections say they are still well built properties.”
But this doesn’t mean they are going to be the right fit for every investor, and not every property they build is a good investment. And this is true of most things.
So, whether or not one of Mike Greer’s properties is the right investment for you will hinge on the figures standing up and the deal you are evaluating.
That’s why many investors who purchase New Build investment properties use our service at Opes to evaluate many developers and find the right properties to suit their portfolios.
Write your questions or thoughts in the comments section below.
Journalist and Property Educator, holds a Bachelor of Communication (Honours) from Massey University.
Laine Moger, a seasoned Journalist and Property Educator holds a Bachelor of Communications (Honours) from Massey University and a Diploma of Journalism from the London School of Journalism. She has been an integral part of the Opes team for four years, crafting content for our website, newsletter, and external columns, as well as contributing to Informed Investor and NZ Property Investor.
This article is for your general information. It’s not financial advice. See here for details about our Financial Advice Provider Disclosure. So Opes isn’t telling you what to do with your own money.
We’ve made every effort to make sure the information is accurate. But we occasionally get the odd fact wrong. Make sure you do your own research or talk to a financial adviser before making any investment decisions.
You might like to use us or another financial adviser